MONACO GOLDEN SQUARE 2 ROOMS IN MIXED USE CELLAR AND PARKING
Les Acanthes is a luxurious residence located in the Carré d'Or of Monaco. Two accesses allow you to reach the Larvotto beaches or the Place du Casino (Amazonico, Café de Paris, Hotel de Paris), on foot in a few minutes. On one side the building has its main entrance, equipped with a reception with concierge, located a few steps away from the Metropole Shopping Center. As for the exit on rue du Portier, we find ourselves between the famous restaurants (Cipriani, Robuchon, Piazza, Zeffirino, Anahi, Pulcinella, Trinity). The building benefits from reversible air conditioning heating. A rare advantage : the mixed use of the building offers flexibility for residential or office use.
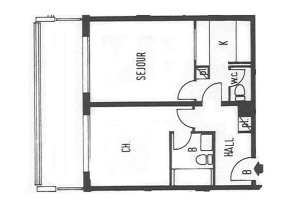
This 2-room apartment, very functional, has an entrance with cupboards, a living room, an independent fitted kitchen, a guest toilet, a bedroom with ensuite shower & water closet, and a large balcony accessible from both rooms. Meticulous finishes include marble flooring, parquet floor on the balcony and wooden doors. Plenty of storage space is built-in. Renovated and furnished, ready to live in. This property also includes a cellar number 251 in the second basement and a parking lot number 114 in the first basement. Don't miss out on this unique opportunity in the heart of Monaco.
This document does not form part of any offer or contract. All measurements, areas and distances are approximate. The information and plans contained herein are believed to be correct, however, their accuracy is not guaranteed. The photographs show only certain parts of the property at the time they were taken. This offer is subject to change of price or other conditions, without prior notice.
